Estado de Disponibilidad: | |
---|---|
Cantidad: | |
FUE05 es un equipo en cierre y un vehículo de transporte explosivo Secrilly diseñado para minas subterráneas y puede cargar hasta 2.5 toneladas de carga. El vehículo de transporte adopta un marco delantero y trasero articulado, dirección con un equipo de dirección y un pequeño radio de giro, que es adecuado para la operación subterránea de la carretera. El CAB está diseñado de acuerdo con los estándares de cerificación ISO ROPS/FOPS para garantizar la seguridad del personal. El sistema de control se basa en el diseño de bus de bus CAN, los técnicos electrónicos FET, la pantalla a bordo puede mostrar los parámetros operativos en tiempo real y tiene las funciones de advertencia de fallas y autodiagnóstico.
▍ Especificación
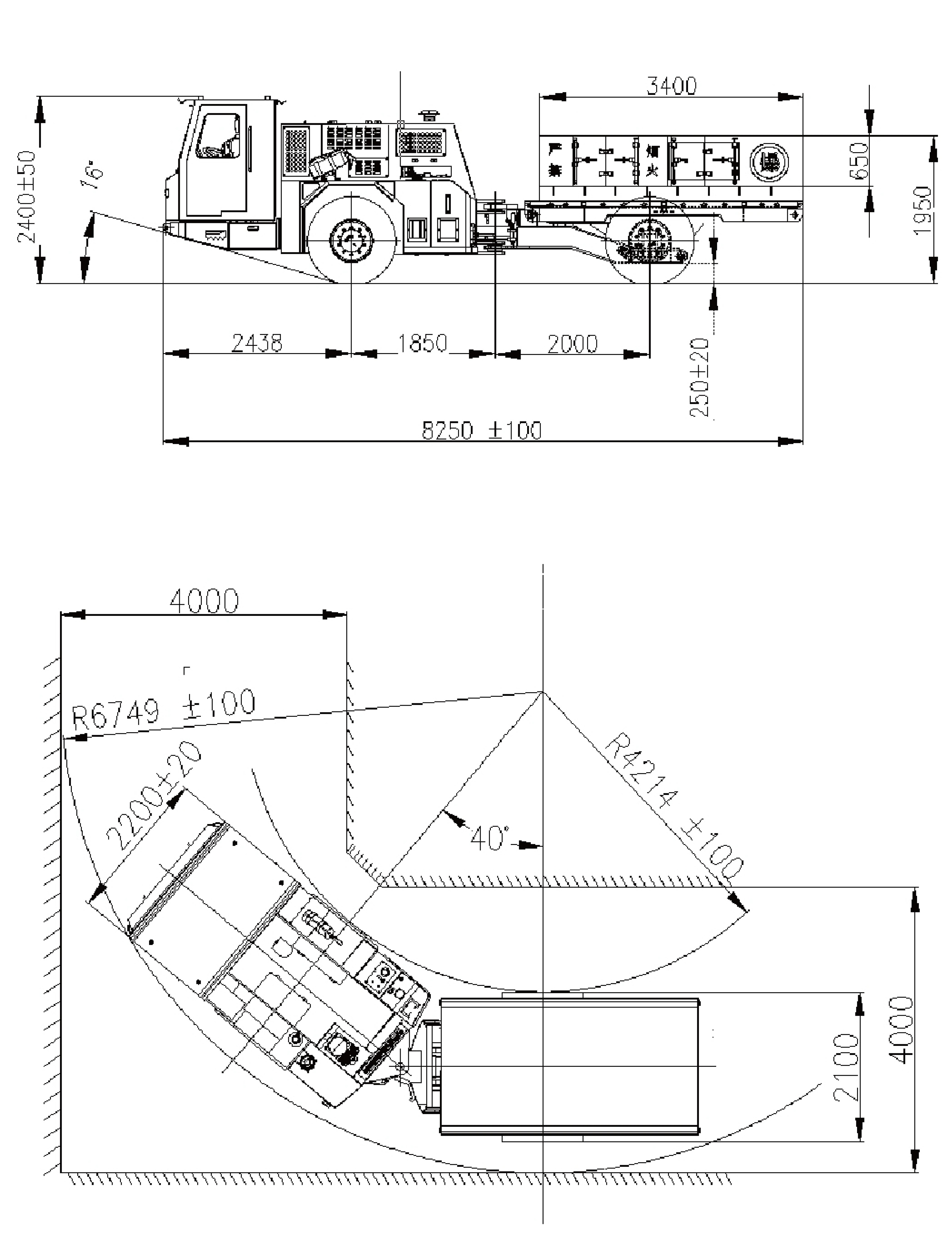
Actuación | Radio de giro |
Carga útil con calificación 2500 kg | Ángulo de dirección: ± 40 ° |
Peso de funcionamiento 8500 kg | Radio de giro interno: 3932 mm |
Cabina | Radio de giro exterior: 6108 mm |
ISO ROPS/FOPS certificado | |
Velocidad (nivel, cargado completo) | |
1ST Gear: 4.9 km/h | |
Dimensión | 2Equipo ND : 12.5 km/h |
Longitud: 7789 mm | 3RD Gear: 23.7 km/h |
Ancho: 1830 m | |
Altura: 2215 mm | Sistema hidráulico |
Aparte del suelo ≥309 mm | Bomba de dirección: Danfoss |
Válvula de carga/válvula de pedal: MICO | |
Solenoide de estacionamiento: apuestas | |
Sistema de alimentación | Cabina (cerrada) |
Motor: Cummins QSB4.5, | Certificación FOPS/ROPS |
Control eléctrico, agua enfriada, 97 | Cabina de aire acondicionado y calefacción de aire cerrado |
KW, Nivel 3 | Sistema de acceso de contacto de tres puntos a |
Sistema de escape: Canadá, | Entra rápidamente en la cabaña |
Purificador y silenciador catalítico | Asiento suspensivo |
Transmisión: Dana T20000, 3 Gears FWD/RVS cada uno | |
Eje: Dana 112, eje rígido minero, | Sistema de frenos |
Oscilación ± 10 °, eje trasero fijo. | Freno de servicio: Posi-stop |
Tamaño del neumático: 10.00-20 | Brrakes de liberación hidráulica aplicada por primavera, |
con enfriamiento de aceite reforzado |
▍ Vista del dispositivo
▍ Vista de servicio
▍ Benefits
Seguridad mejorada : el FUE05 presenta estructuras reforzadas y materiales especializados para reducir el riesgo de detonación accidental al transportar explosivos en las operaciones mineras subterráneas.
Durabilidad y confiabilidad : diseñado para condiciones extremas, el FUE05 garantiza un rendimiento constante a largas distancias, incluso en entornos subterráneos duros.
Control de temperatura : con sistemas de regulación de temperatura opcional, el FUE05 mantiene un entorno estable, esencial para el transporte seguro de explosivos sensibles a la temperatura.
Carga y descarga eficientes : el diseño del vehículo permite una carga y descarga rápida y segura, optimizando el tiempo y minimizando los riesgos en el manejo de materiales explosivos.
Reducción de ruido y vibración : equipado con sistemas avanzados de aislamiento y amortiguación, el FUE05 garantiza un entorno más tranquilo y estable para transportar explosivos.
Eficiencia de combustible : optimizado para reducir el consumo de combustible, el FUE05 ayuda a reducir los costos operativos y minimiza el impacto ambiental, lo que lo convierte en una solución de transporte ecológica.
Mantenimiento fácil : diseñado para un fácil acceso a componentes clave, el FUE05 simplifica el mantenimiento, la mejora de la eficiencia operativa y la extensión de la vida útil del vehículo.
▍Aplicaciones
Minería subterránea : transporte de explosivos y materiales en túneles subterráneos estrechos. El diseño compacto del FUE05 y el pequeño radio de giro mejoran la maniobrabilidad y la productividad en los espacios confinados.
Operaciones de explosión : mueva los explosivos de forma segura hacia y desde áreas de voladura, minimizando el manejo de riesgos y garantizando el cumplimiento de las regulaciones de seguridad.
Manejo de materiales : transporte de minerales y equipos de manera eficiente a través de túneles mineros estrechos, mejorando el flujo de materiales y reduciendo los retrasos.
Flota de equipos de minería : Integre con su flota minera para un transporte confiable, reduciendo el tiempo de inactividad y optimizando el movimiento del material.
FUE05 es un equipo en cierre y un vehículo de transporte explosivo Secrilly diseñado para minas subterráneas y puede cargar hasta 2.5 toneladas de carga. El vehículo de transporte adopta un marco delantero y trasero articulado, dirección con un equipo de dirección y un pequeño radio de giro, que es adecuado para la operación subterránea de la carretera. El CAB está diseñado de acuerdo con los estándares de cerificación ISO ROPS/FOPS para garantizar la seguridad del personal. El sistema de control se basa en el diseño de bus de bus CAN, los técnicos electrónicos FET, la pantalla a bordo puede mostrar los parámetros operativos en tiempo real y tiene las funciones de advertencia de fallas y autodiagnóstico.
▍ Especificación
Actuación | Radio de giro |
Carga útil con calificación 2500 kg | Ángulo de dirección: ± 40 ° |
Peso de funcionamiento 8500 kg | Radio de giro interno: 3932 mm |
Cabina | Radio de giro exterior: 6108 mm |
ISO ROPS/FOPS certificado | |
Velocidad (nivel, cargado completo) | |
1ST Gear: 4.9 km/h | |
Dimensión | 2Equipo ND : 12.5 km/h |
Longitud: 7789 mm | 3RD Gear: 23.7 km/h |
Ancho: 1830 m | |
Altura: 2215 mm | Sistema hidráulico |
Aparte del suelo ≥309 mm | Bomba de dirección: Danfoss |
Válvula de carga/válvula de pedal: MICO | |
Solenoide de estacionamiento: apuestas | |
Sistema de alimentación | Cabina (cerrada) |
Motor: Cummins QSB4.5, | Certificación FOPS/ROPS |
Control eléctrico, agua enfriada, 97 | Cabina de aire acondicionado y calefacción de aire cerrado |
KW, Nivel 3 | Sistema de acceso de contacto de tres puntos a |
Sistema de escape: Canadá, | Entra rápidamente en la cabaña |
Purificador y silenciador catalítico | Asiento suspensivo |
Transmisión: Dana T20000, 3 Gears FWD/RVS cada uno | |
Eje: Dana 112, eje rígido minero, | Sistema de frenos |
Oscilación ± 10 °, eje trasero fijo. | Freno de servicio: Posi-stop |
Tamaño del neumático: 10.00-20 | Brrakes de liberación hidráulica aplicada por primavera, |
con enfriamiento de aceite reforzado |
▍ Vista del dispositivo
▍ Vista de servicio
▍ Benefits
Seguridad mejorada : el FUE05 presenta estructuras reforzadas y materiales especializados para reducir el riesgo de detonación accidental al transportar explosivos en las operaciones mineras subterráneas.
Durabilidad y confiabilidad : diseñado para condiciones extremas, el FUE05 garantiza un rendimiento constante a largas distancias, incluso en entornos subterráneos duros.
Control de temperatura : con sistemas de regulación de temperatura opcional, el FUE05 mantiene un entorno estable, esencial para el transporte seguro de explosivos sensibles a la temperatura.
Carga y descarga eficientes : el diseño del vehículo permite una carga y descarga rápida y segura, optimizando el tiempo y minimizando los riesgos en el manejo de materiales explosivos.
Reducción de ruido y vibración : equipado con sistemas avanzados de aislamiento y amortiguación, el FUE05 garantiza un entorno más tranquilo y estable para transportar explosivos.
Eficiencia de combustible : optimizado para reducir el consumo de combustible, el FUE05 ayuda a reducir los costos operativos y minimiza el impacto ambiental, lo que lo convierte en una solución de transporte ecológica.
Mantenimiento fácil : diseñado para un fácil acceso a componentes clave, el FUE05 simplifica el mantenimiento, la mejora de la eficiencia operativa y la extensión de la vida útil del vehículo.
▍Aplicaciones
Minería subterránea : transporte de explosivos y materiales en túneles subterráneos estrechos. El diseño compacto del FUE05 y el pequeño radio de giro mejoran la maniobrabilidad y la productividad en los espacios confinados.
Operaciones de explosión : mueva los explosivos de forma segura hacia y desde áreas de voladura, minimizando el manejo de riesgos y garantizando el cumplimiento de las regulaciones de seguridad.
Manejo de materiales : transporte de minerales y equipos de manera eficiente a través de túneles mineros estrechos, mejorando el flujo de materiales y reduciendo los retrasos.
Flota de equipos de minería : Integre con su flota minera para un transporte confiable, reduciendo el tiempo de inactividad y optimizando el movimiento del material.
Ubicada en la zona de desarrollo económico de Laixi en la ciudad de Qingdao, FAMBITION es un conocido y especializado fabricante de equipos mineros sin rieles.
Derechos de autor © 2024 QINGDAO FAMBITION HEAVY MACHINERY CO.,LTD. Reservados todos los derechos. | Sitemap | política de privacidad